S C H U L E  C A M P U S  O R T

Projekt von Amelie M. Barth am Lehrstuhl von Prof. em. Karl-Heinz Schmitz, Entwerfen und Gebäudelehre II, Bauhaus-Universität Weimar
Standort: Mettmenstetten, Schweiz


In Mettmenstetten, eine politische Gemeinde im Kanton Zürich in der Schweiz, leben ca. 4470 Einwohner verteilt auf fünf Zivilgemeinden. Seit 1884 besitzt die Gemeinde einen eingleisigen Bahnhof. Durch den Bau des im Jahr 2009 eröffneten Autobahnteilstücks A4 ist Mettmenstetten nicht nur gut angebunden, sondern auch ein wichtiges Verbindungsstück zwischen Luzern und Zürich. Die Anbindung an Bahn und Autobahn sind einerseits für die Anwohner Mettmenstettens (Bsp. Pendler), aber auch für örtliche Firmen wie die HAWA AG von großem Vorteil. Die direkte Nähe zur Autobahn macht Mettmenstetten zu einem wirtschaftlich idealen Standort.

Durch zahlreiche Umbauten und Straßenbauten verlor die Gemeinde jedoch über die Jahre an Charakter, der frühere Ortskern ist lediglich durch die bereits 998 n. Chr. gebaute und bis Anfang des 16. Jahrhunderts erweiterte Kirche zu erahnen. Die Industrie nahm auf Dorfseite, in unmittelbarer Nähe zum Bahnhof ein großes Gebiet ganz für sich ein, während Wohnbebauungen sich in alle Himmelsrichtungen verstreuten.

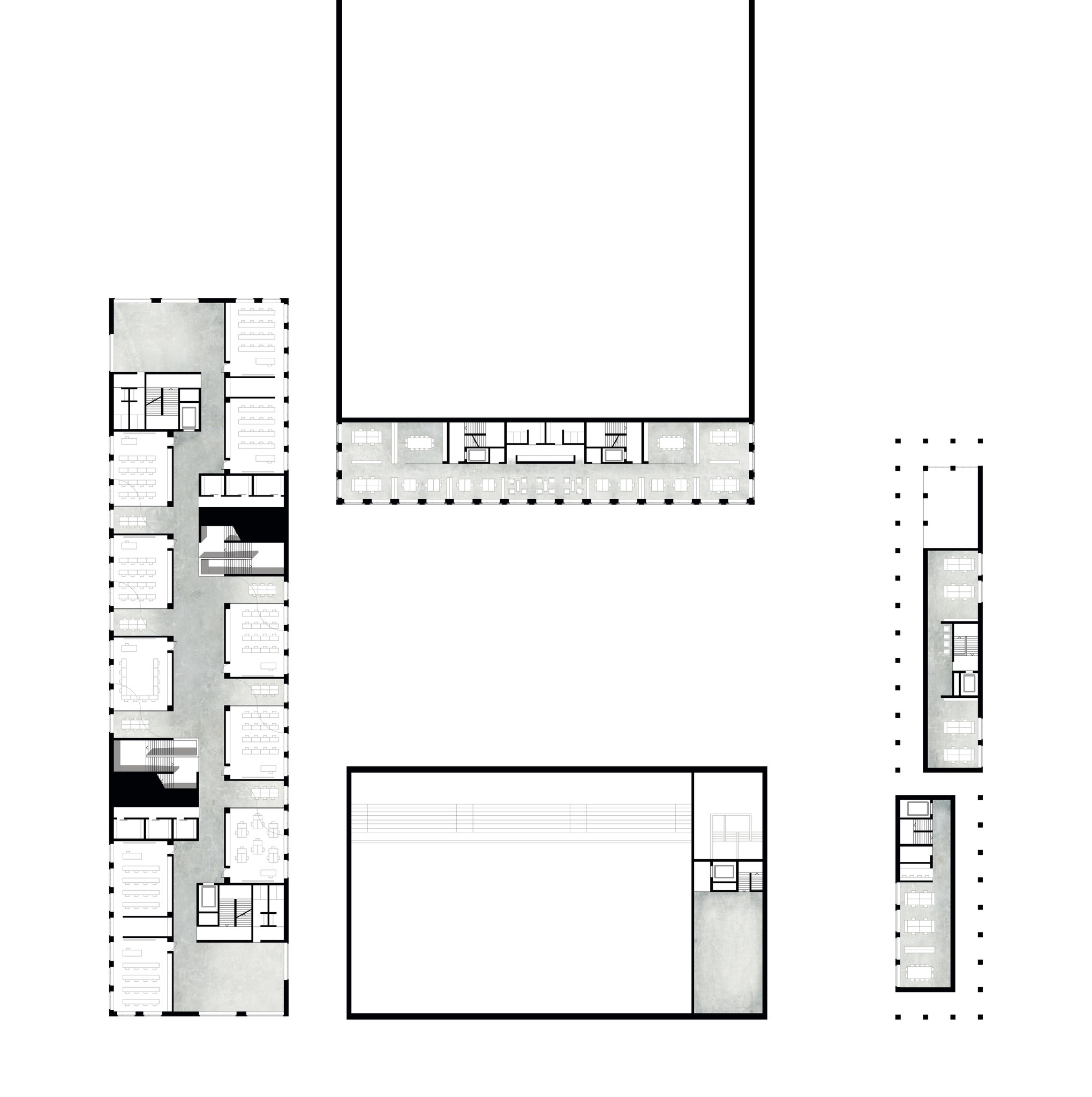
Ziel des Entwurfs ist die Industriebebauung auf das den Gleisen gegenüberliegende Grundstück zu verlegen und durch eine Mischfunktion einer erneuten Isolierung der Industrie zu verhindern. Es gilt an die Wohnbebauung anzuknüpfen und mittels gezielter Eingriffe, wie das Schaffen neuer öffentliche Räume der Zersiedelung entgegen zu wirken und die Gemeinde wieder zusammen zu schnüren. Dabei bilden Gebäudegruppen jeweils einen Platz. Der Auftaktplatz (±00.00) auf der Dorfseite wird durch eine Markthalle, ein Geschäftshaus und ein Produktionsgebäude gebildet. Der neu gestaltete Bahnhof, eine Berufsschule und eine Turnhalle, sowie die Produktionsstätte der HAWA AG verbinden die beiden Seiten jenseits der Bahngleise baulich durch eine Unterführung und durch das erneute Ausformen eine Platzes (±00.00m). Die Unterführung entsteht zwischen dem südlichen Teil des Bahnhofs und der Turnhalle. Die Turnhalle ist dabei nicht nur eine Sportstätte (inkl. Fitnessstudio), sondern bietet ausgiebigen Raum für (Groß-)Veranstaltungen. Durch einen im Süden gen Wohnbebauung vorgelagerten, gefassten Platz (-03.00m) wird so auch eine Verbindung zur Wohnbebauung im Südwesten hergestellt. Die Verwaltungsabteilung der HAWA AG hat ihre Adresse unmittelbar am Platz. Das EG enthält ein fließendes Foyer mit Empfang und einem kleinen Café. Nach oben entwickeln sich die privaten Büroräume der Firma. Verwaltung und Turnhalle stehen in unmittelbarer Verbindung zur Berufsschule, die den Hauptakteur des Platzes darstellt. Mehrere Eingangstüren und ein einladendes Vordach markieren den Hauptzugang zur Schule.